电影天堂-电影天堂官方最快发布站

您现在所在的位置 : 电影天堂-电影天堂官方最快发布站 > 汕尾市自然资源局 > 电影天堂公开  > 五公开专栏 > 执行公开
汕尾高新区红草园区建设用地规划许可证批前公示
  • 2025-12-25 17:11
  • 来源: 本网
  • 发布机构: 汕尾市自然资源局
  • 【字体:    

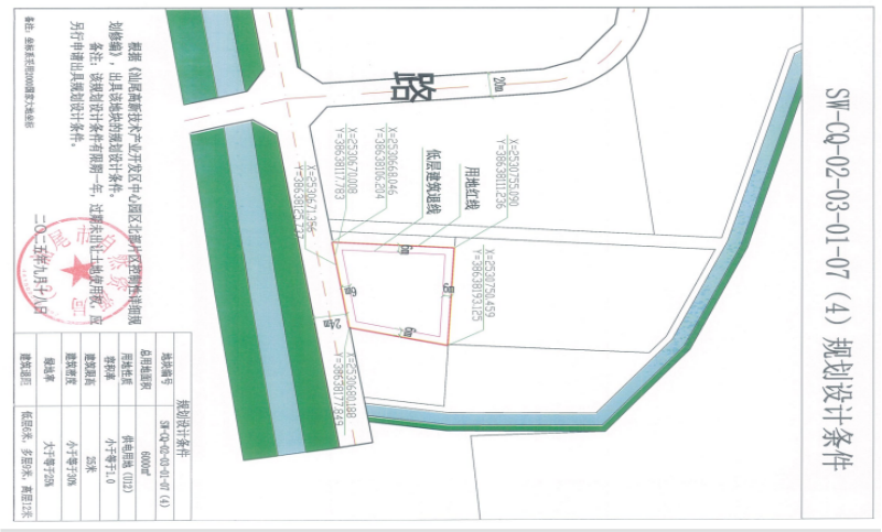
  汕尾唐兴新能源有限责任公司通过公开招拍挂取得位于汕尾高新区红草园区一宗面积6000㎡供电用地的土地使用权,现拟核发该用地的建设用地规划许可证。依照《广东省城乡规划条例》第二十九条的有关规定,对相关事项公示如下:

  用地单位:汕尾唐兴新能源有限责任公司。

  用地位置:汕尾高新区红草园区。

  用地性质:供电用地。

  用地面积:6000㎡。    

  汕尾唐兴新能源有限责任公司建设用地规划许可证的具体内容,可到我局咨询或登录网站(//dyttofficial.com/swgtj)查询。在公示时限内,任何单位、组织和个人对本公示所列内容有异议的,请在公示之日起十个自然日内,以书面材料形式向我局反映,逾期未提出的,视为放弃上述权利。      

  特此公示    

  联系人: 陈先生    联系电话:0660-3377096

  附:SW-CQ-02-03-01-07(4)地块建设用地红线图

  汕尾市自然资源局

  2025年12月25日


关联稿件:
相关附件:
扫一扫在手机打开当前页

您访问的链接即将离开“汕尾市自然资源局”网站,是否继续?